Modular Quick-Assembly Cabins

Build Granny Annexes Smarter with WarmWayHome

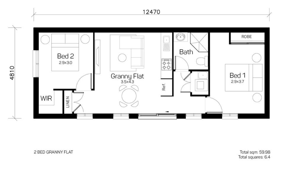
3 Beds Granny Annex

ABOUT THE PROJECT

The new WarmWayHome 3-Bed Granny Flat combines the efficiency of modular quick-assembly design with the warmth of our modern aesthetic, creating a spacious yet compact home ideal for families or shared living. Featuring three comfortable bedrooms, a central open-plan living and kitchen area, and a full bathroom, it delivers all the essentials of a permanent home in a sleek 60 m² footprint.

 3 Bedroom  1 Bathroom

 60m²

INCLUSIONS

At WarmWayHome, we understand that no matter what your granny annex is for, whether it’s for a family member or for an investment, you want your granny flat to have only the best. That’s why the Tulip comes with an extensive range of inclusions, including a light, fan and heater combination, which have been chosen to make sure that you get the most out of your granny annex. If you’d like to learn more about the inclusions that come with the Tulip, give our team a call.

Scroll to Top